På hjørnet af Frederiksborgvej og Bispevej opføres et nyt bolig- og byudviklingsprojekt, der forbinder det industrielle Nordvest med de omkringliggende boligkvarterer. Projektet rummer 51 ejerboliger samt en dagligvarebutik og café, som bidrager til liv og sammenhæng i området.

Arkitekturen tager afsæt i kvarterets industrielle arv med robuste volumener, skrå tagflader og karakteristiske shedtage. Ejendommen opføres i 4–5 etager med facader i genbrugstegl og certificeres med Svanemærket, DGNB Guld og DGNB Hjerte – med særligt fokus på indeklima og arkitektonisk kvalitet.

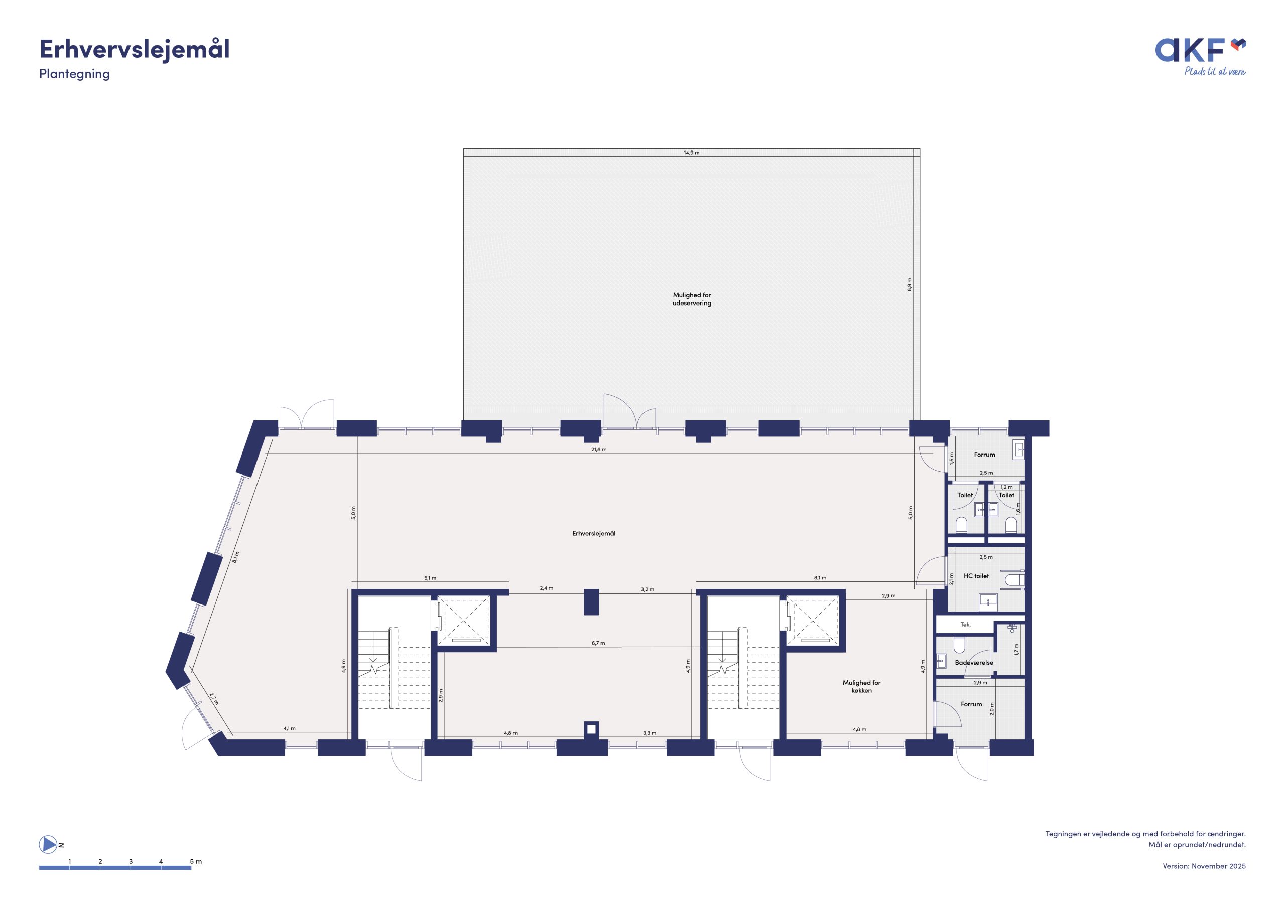
I stueetagen etableres et attraktivt erhvervslejemål velegnet til café, kaffebar eller restaurant. Lejemålet har ca. 4 meter til loftet, store vinduespartier og høj synlighed mod gaden. Der er direkte adgang til en solrig terrasse med mulighed for udendørs servering.

Lejemålet rummer plads til ca. 70–80 siddepladser indendørs og ca. 40 udendørs samt produktionskøkken og personalefaciliteter. Det overtages som greybox med etableret rørføring til udsugning og fedtudskiller.

Fakta om erhvervslejemålet

Ejendom : Frederiksborgvej 59
Adresse : Frederiksborgvej 59, st.
Postnummer : 2400
By : København NV
Anvendelse : Butik
Areal : 298 m²
Overtagelse : Efter nærmere aftale

Udgifter til erhvervlejemålet

Leje pr. år : kr. 599.600
A conto driftsudgifter : inkl. i lejen
A conto forbrugsudgifter : kr. 105 pr. m² p.a.
Depositum : Kontant, svarende til 6 måneders leje
Opsigelsesvarsel : 6 måneder
Uopsigelighed : Efter nærmere aftale

Indkøb

300 m

Off. transport

250 m

København

0 km

Motorvej

1,7 km

Nysgerrig eller interesseret?

Vi sidder klar til at hjælpe dig med at finde det helt rette lejemål til din virksomhed.

Kontakt vores erhvervsudlejning på +45 38 10 21 07 eller erhverv@akfholding.dk

Andre ledige erhvervslejemål

Hos AKF er der plads til at være. Plads til at være fælles og plads til at være lige præcis den, man er. Vi omfavner fællesskabet og mangfoldigheden, og arbejder hårdt for at sikre, at det skinner igennem i vores måde at være virksomhed, arbejdsplads, samarbejdspartner og udlejer på.

AKF Holding A/S

Bispevej 2
2400 København NV
CVR: 10363977

Følg os

Compare Listings

Title Price Status Type Area Purpose Bedrooms Bathrooms